
TÒA A3 THE ARCADIA DỰ ÁN VINHOMES GARDENIA
Là tòa cao ốc cuối cùng của dự án Vinhomes Gardenia Mỹ Đình, tòa A3 The Arcadia sở hữu những ưu điểm vượt trội mà tòa A1 và A2 không có.
Không phụ sự kỳ vọng, mật độ sàn căn hộ tại tòa A3 The Arcadia của dự án Vinhomes Gardenia Mỹ Đình được thiết kế khoa học và thấp. Mỗi sàn sẽ được chia làm 3 sảnh, mỗi sảnh là 7 căn hộ với 5 thang máy. Số lượng thang máy nhiều lại được trang bị bằng hệ thống thang máy công nghệ tiên tiến nhất giúp việc di chuyển lên xuống nhanh nhất có thể. Đây chính là ưu điểm vượt trội của tòa A3 The Arcadia đặc biệt được thiết kế nhằm đáp ứng nhu cầu di chuyển cho cư dân.
THÔNG SỐ CHUNG VỀ TÒA A3 THE ARCADIA
-
Tổng số tầng tòa A3: 39 tầng
-
Số tầng căn hộ: 37 tầng
-
Loại căn hộ: Căn hộ 1 tầng và Căn hộ thông tầng (duplex)
-
Số căn hộ: 741 căn hộ.
-
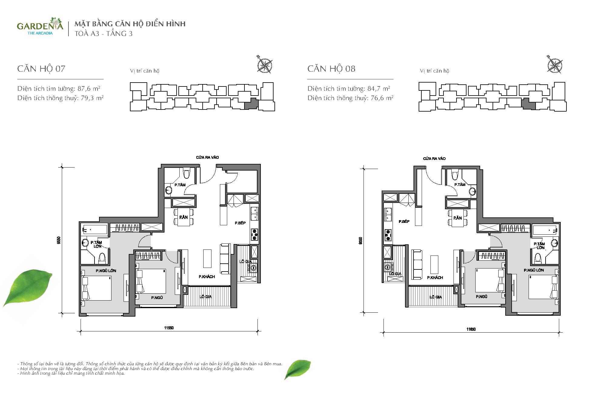
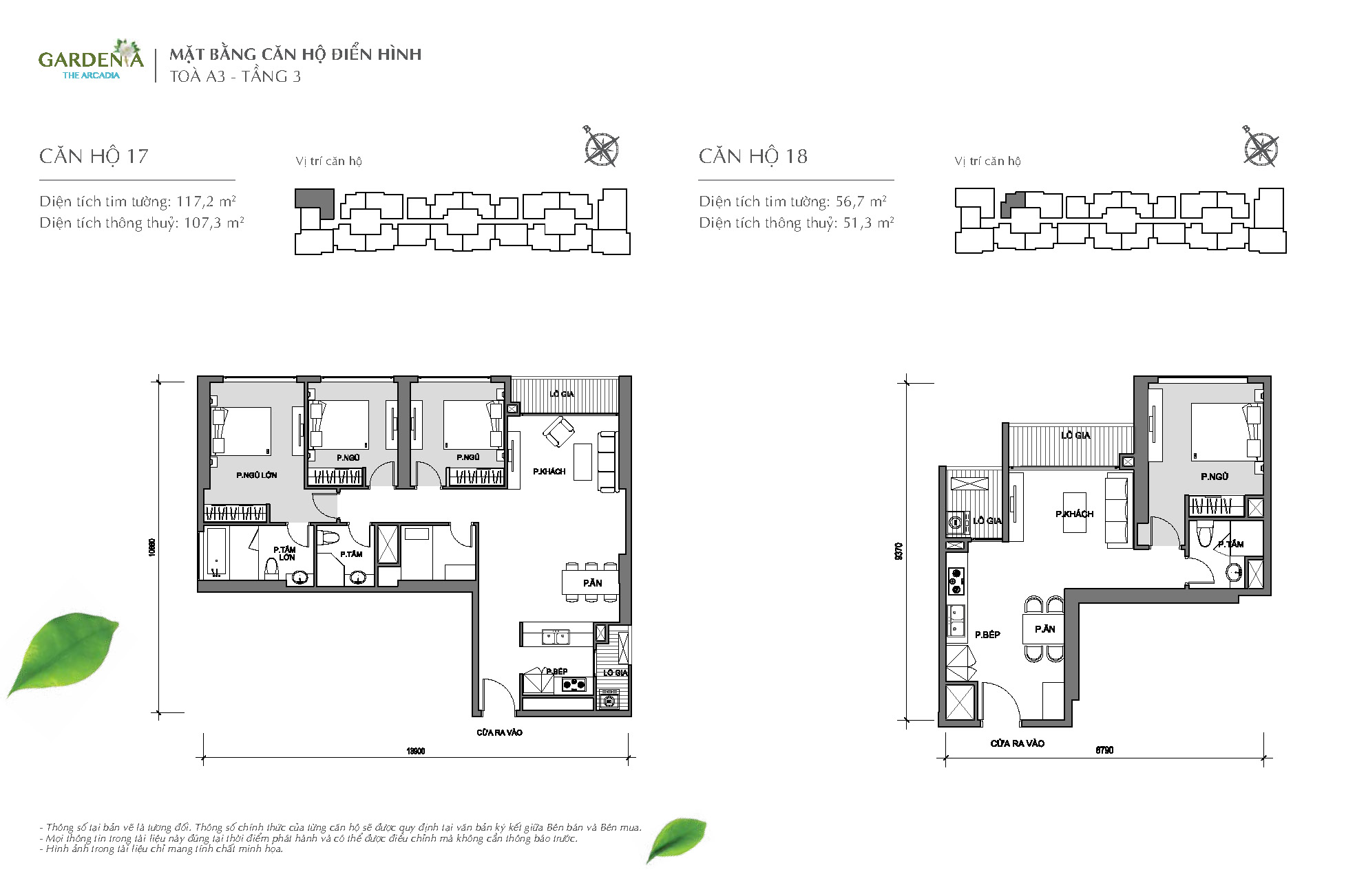
Tầng 3: 21 căn/ tầng
-
Tầng 4 – tầng 39: 20 căn/ tầng
-
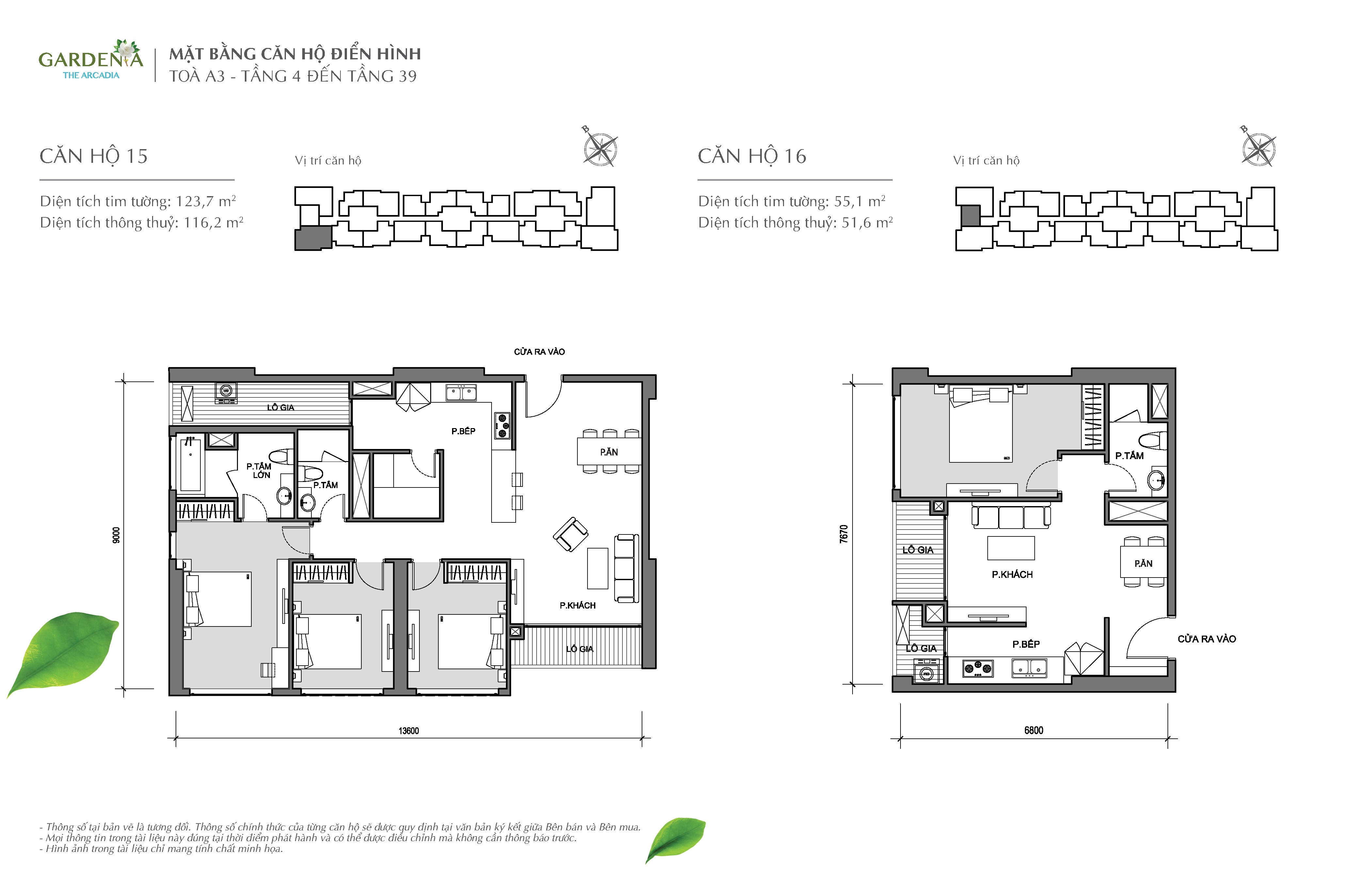
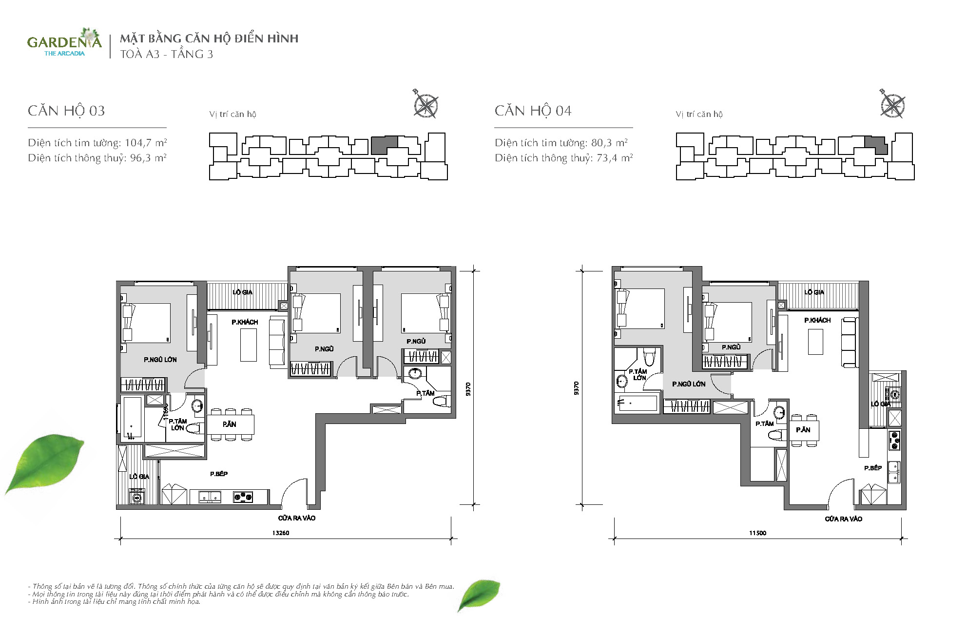
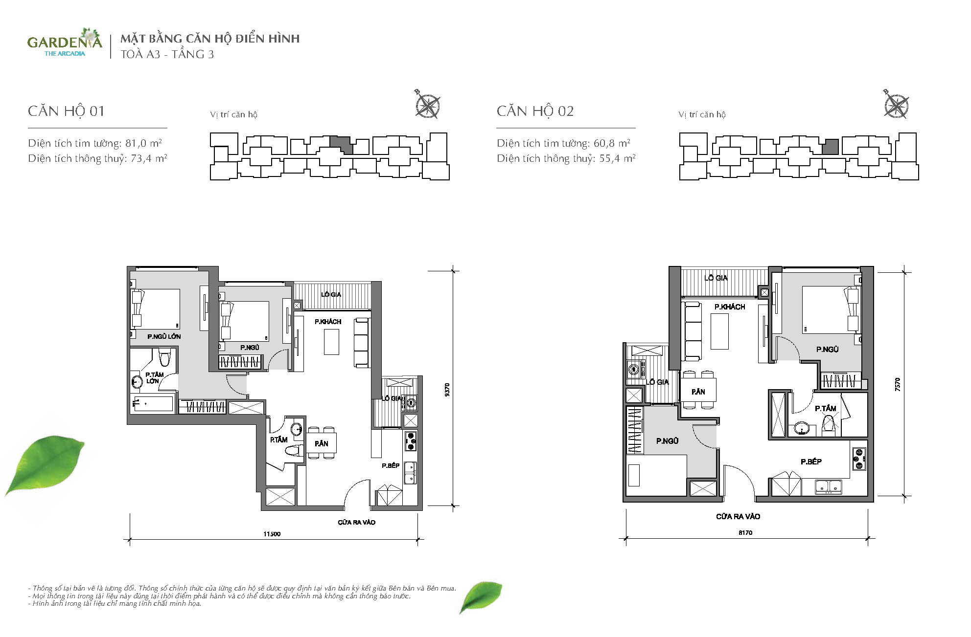
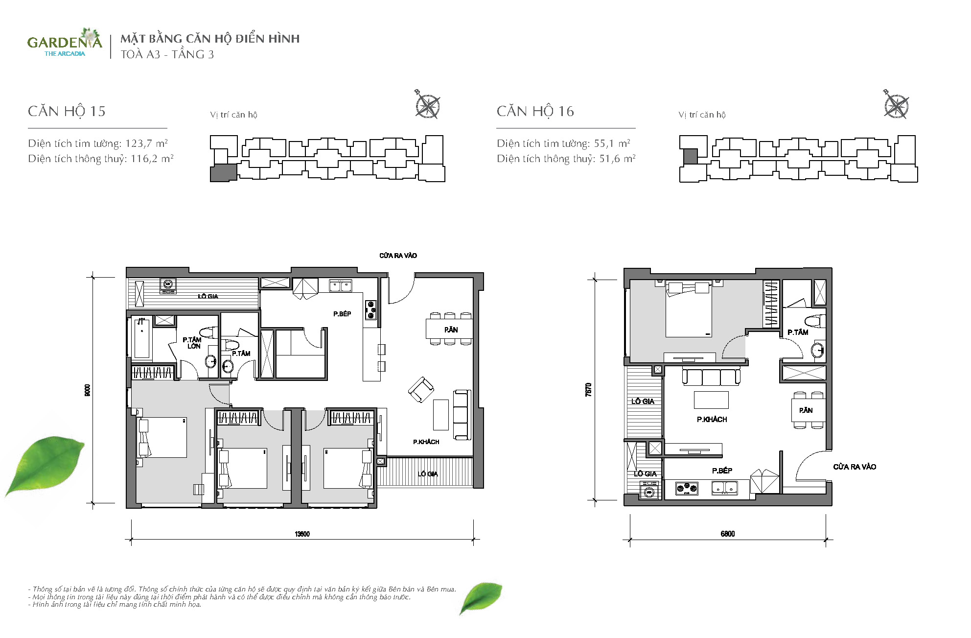
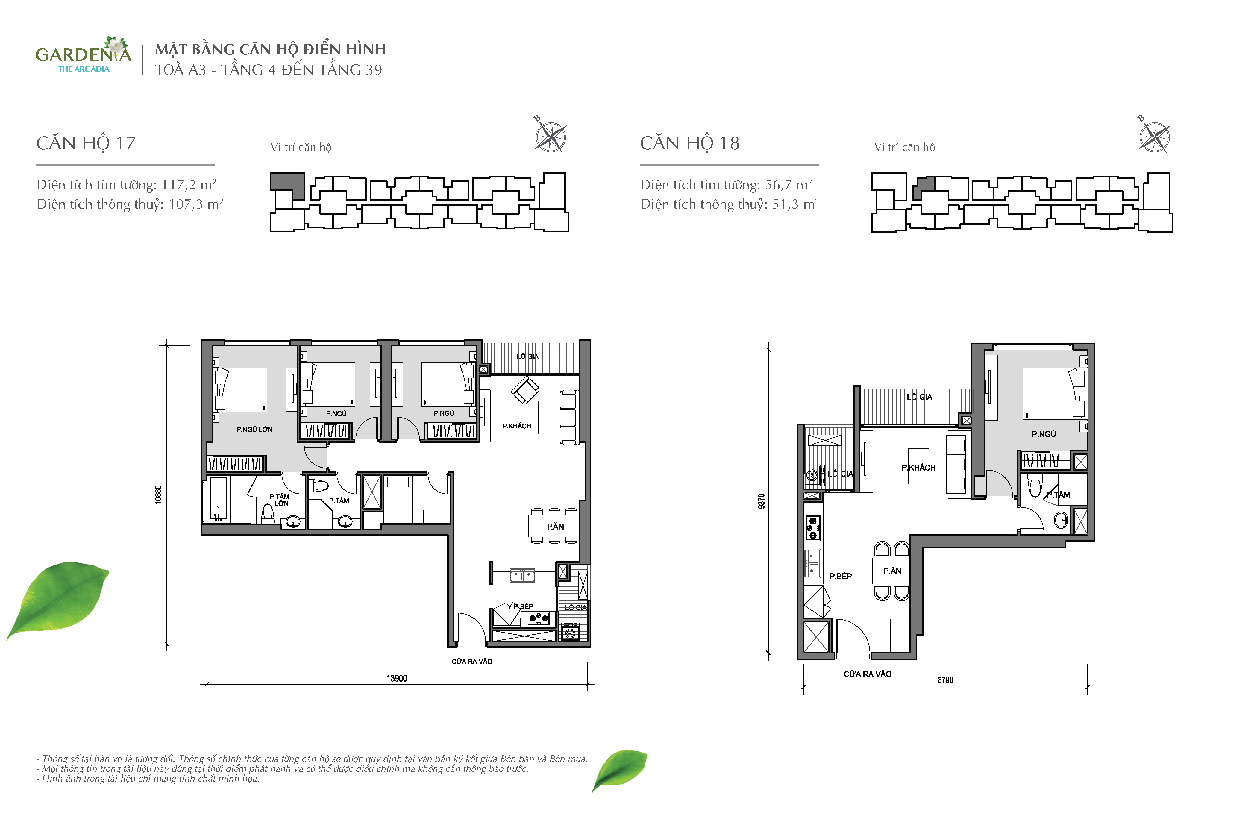
Diện tích căn hộ: Từ 56,6 m2 – 146,8 m2.
-
Số phòng ngủ: Từ 1 đến 4 phòng ngủ.
-
Hướng căn hộ: hướng view trực diện quảng trường; hướng chính bể bơi trung tâm cao cấp, tiếp giáp sân chơi tennis, sân chơi trẻ em, vườn xuân, và đường chạy bộ…
CÁC LOẠI DIỆN TÍCH CỦA TÒA A3 THE ARCADIA
-
Căn hộ 1 phòng ngủ: 4 căn, diện tích 55 – 60 m2, Tổng có 76 căn hộ.
-
Căn hộ 2 phòng ngủ: 11 căn, diện tích từ 80,9 m2 đến 88,9 m2, Tổng có 407 căn hộ.
-
Căn hộ 3 phòng ngủ: 5 căn, diện tích từ 104,8 m2 – đến 123,7 m2, Tổng có 185 căn hộ.
-
Căn hộ 4 phòng ngủ: 1 căn, diện tích 146,8 m2, Tổng có 37 căn hộ.
-
Căn hộ Duplex: 2 căn , 2 tầng diện tích 102 m2, Tổng có 36 căn hộ.

LIÊN HỆ TRỰC TIẾP PHÒNG DỰ ÁN ĐỂ ĐƯỢC HỖ TRỢ THÔNG TIN CHÍNH XÁC NHẤT
★ CÔNG TY CỔ PHẦN BẤT ĐỘNG SẢN TRUELAND ★
⇒ ĐỊA CHỈ: Tầng 6, Tòa nhà Việt Á, Số 9 Duy Tân, Q. Cầu Giấy, TP. Hà Nội.
⇒ HOTLINE: 0989 286 499 - 0943 623 886
⇒ WEBSITE: http://vinhomesgardenia.wixsite.com/gardenia
